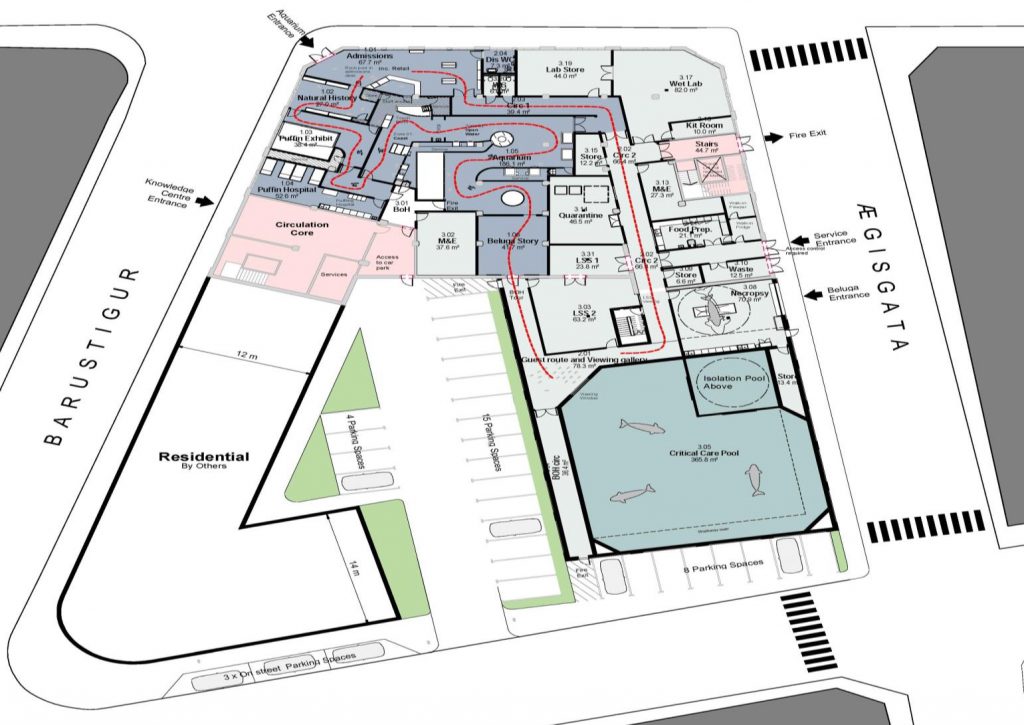
Áform um byggingu hvalathvarfs samþykkt

Á fundi Umhverfis- og skipulagsráðs á mánudaginn var lögð fram umsókn um byggingarleyfi fyrir viðbyggingu og breytingu á jarðhæð við �?gisgötu 2 en það gerði Bragi Magnússon fyrir hönd The Beluga Building Company. Um er að ræða 700 fm. viðbyggingu á tveimur hæðum og breyttri notkun á jarðhæð eins og fyrr segir en það sem […]
Foreldrar í Vestmannaeyjum borga lægstu gjöldin fyrir skóladagvistun

Verðlagseftirlit ASÍ kannaði breytingar á gjaldskrám frá árinu 2017 �?? 2018 fyrir skóladagvistun, hressingu og hádegismat í skólunum. Mikill munur er á kostnaði við skóladagvistun og skólamáltíðir hjá sveitarfélögunum en hæst eru gjöldin fyrir skóladagvistun ásamt hádegismat og hressingu hjá Garðabæ eða 37.114 kr. en lægst hjá Vestmanneyjum eða 24.360 kr. Munurinn nemur 12.754 kr. […]
�?happ við losun úr Bodö á laugardaginn hafði lítil áhrif

�?happ varð um borð í Bodö á laugardaginn þegar verið var að losa stóran og þungan sementsvagn úr ferjunni, en þá bognaði viðbót við akstursbrú ferjunnar, sem varð til þess að hvorki var hægt að losa skipið né lesta það. Gunnlaugur Grettisson framkvæmdastjóri Sæferða sagði að einu afleiðingarnar sem þetta hafði í för með sér […]
ÍBV fær Víking í heimsókn í Olís-deild karla

Karlalið ÍBV í handbolta hefur leik að nýju eftir langt hlé en liðið spilaði síðast 21. desember. Fá Eyjamenn Víking í heimsókn og hefst leikurinn kl. 18:30. (meira…)
Sigríður Lára Íþróttamaður Vestmannaeyja 2017

Héraðssamband ÍBV stóð fyrir uppskeruhátíð í Höllinni í gær en þar voru íþróttamenn innan sambandsins á öllum aldri heiðraðir fyrir sín störf. Að þessu sinni hlaut Sigríður Lára Garðarsdóttir nafnbótina Íþróttmaður Vestmannaeyja 2017 en var lykilmaður í liði ÍBV sem hampaði bikarmeistaratitli á síðasta ári. (meira…)
ÍBV lagði toppliðið að velli – myndir

ÍBV sigraði Val þegar liðin mættust í 15. umferð Olís-deildar kvenna í kvöld en fyrir leikinn voru Valskonur á toppnum en lið ÍBV í fjórða sæti, lokastaða 31:27. Eyjakonur tóku strax frumkvæðið í leiknum og létu forystuna aldrei af hendi en mestur var munurinn átta mörk. Ester �?skarsdóttir var markahæst í liði ÍBV með tíu […]
Ingi Sigurðsson gefur kost á sér í aðalstjórn KSÍ

Ársþingið fer fram á Hilton Reykjavík Nordica laugardaginn 10. febrúar. Jóhannes �?lafsson sem setið hefur í stjórn KSÍ síðustu árin mun ekki gefa kost á sér aftur. Ingi Sigurðsson hefur hinsvegar tilkynnt að hann gefi kost á sér í aðalstjórn KSÍ. Framboð á 72. ársþingi KSÍ Kosning formanns Guðni Bergsson var kjörinn formaður KSÍ til […]
Uppskeruhátíð ÍBV í kvöld

�?riðjudaginn 30. janúar fer fram uppskeruhátíð Héraðssambandsins fyrir árið 2017. Á þessari hátíð verða landsliðsmenn félagsins heiðraðir, bikar- og íslandsmeistarar heiðraðir sem og íþróttamenn ársins hjá sérsamböndunum. Einnig verða valdir Íþróttamaður Vestmannaeyjar 2017, íþróttamaður æskunnar eldri 15-19 ár og svo íþróttamaður æskunnar yngri 12-15 ára. Iðkendur ÍBV íþróttafélags eru hvattir til að mæta í Höllina […]
Lífshlaupið hefst á morgun

Lífshlaupið er heilsu- og hvatningarverkefni Íþrótta- og �?lympíusambands Íslands sem höfðar til allra landsmanna. Markmið þess er að hvetja landsmenn til að gera hreyfingu að föstum lið í lífi sínu, hvort sem er í frítímanum, í vinnunni, í skólanum eða við val á ferðamáta. Lífshlaupið er góður vettvangur fyrir þá sem vilja byrja að hreyfa […]
ÍBV fær Val í heimsókn í dag kl. 18:00

ÍBV og Valur mætast í Olís-deild kvenna í dag kl. 18:00. Að loknum 14 umferðum er Valur á toppnum með 24 stig en ÍBV í 4. sæti með 18 stig. (meira…)